rental space
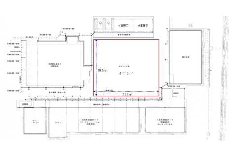
貸出スペース
FLOW
貸出スペース利用の流れ
-
お問い合わせ・審査
まずはお問い合わせください。
ご利用いただくには申請が必要となります。申請に基づき審査を行います。 -
ご利用の決定
審査の結果、利用が承認されます。
-
実施に向けて
利用内容について打ち合わせを行います。
必要があれば追加の申請書類等を
ご提出いただきます。 -
貸出スペースの利用
当日(もしくは前日)の搬入・準備、および実施後の撤去・搬出は、原則、ご利用者様により、利用時間内に行っていただきます。
施設のご予約・お問い合わせ
施設のご予約及びご利用に関するお問い合わせは
下記よりお願いいたします。




